分譲賃貸&充実設備✨
BT別・浴室乾燥機・宅配BOX・オートロック完備!
中央線・丸ノ内線徒歩圏内🚶♂️アクセス良好!










- 種別
- マンション
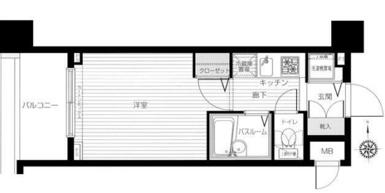
- 間取
- 1K
- 賃料
- 7.5万円 (うち消費税0.75万円)
- 共益費・管理費
- 10,000円
- 敷金
- 礼金
- 1ヶ月
- 保証金
-
- 所在地
- 東京都杉並区梅里2丁目39-9 トーシンフェニックス南阿佐ヶ谷弐番館
- 交通
- 東京メトロ丸ノ内線 南阿佐ヶ谷駅 徒歩6分
JR中央線 阿佐ヶ谷駅 徒歩12分
物件詳細
| 築年月 | 2005/6 | 面積 | 19.04m² |
|---|---|---|---|
| バルコニー | 向き | 南西 | |
| 建物階数 | 地上9階 | 部屋階数 | 8階 |
| 部屋/区画番号 | 807 | 総戸/区画数 | |
| 建物構造 | RC | ||
| 間取内容 | K 6畳 8階 1室 | ||
| 駐車場 | 取引態様 | ||
| 周辺環境 | |||
| 設備・条件 | 電気コンロ 二口コンロ バス専用 トイレ専用 冷房 暖房 エアコン CSアンテナ BSアンテナ 都市ガス エレベータ 宅配ボックス バルコニー フローリング B・T別 シャワー 浴室乾燥機 トイレ 洗面台 ガスコンロ付 収納スペース クローゼット シューズボックス 照明器具 室内洗濯機置場 洗濯機置場 給湯 都市ガス フローリング 全居室フローリング 冷房 暖房 エアコン CS BS端子 オートロック バルコニー エレベーター 宅配BOX |
||
| 物件番号 | 20250529001 | ||
| 特記事項 | ●○●○●○●○●○●○● 当ホームページに載せきれていない物件も沢山取扱いございます。 ポータルサイトや他社さんサイトで気になるお部屋がございましたら お気軽にご相談下さいね。 ●○●○●○●○●○●○● | ||
Loading...
このサイトは賃貸物件の情報を公開しているサイトです。
※物件掲載内容と現況に相違がある場合は現況を優先と致します。
お問い合わせはこちらからお寄せください
お電話からのご予約・お問い合わせ
TEL03-6454-6313
営業時間10:00~19:00
定休日: 水曜日
所在地:東京都杉並区高円寺南3-59-12
宅建免許番号: 東京都知事(2)第99802号
WEBからのご予約・お問い合わせは、下記のフォームからお気軽にどうぞ






